AMERICAN LEGION
Buckhead, GA
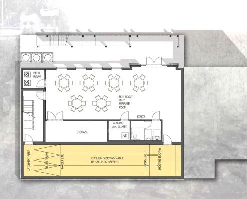
In 2017, The American Legion-Post 140 approached HFR to provide design services to assist in their fundraising efforts for a new building expansion. As a staple in the Buckhead community since 1936, this new building design required additional spaces for larger community gatherings, additional meeting spaces for their growing organization an area for local Boy Scout troops to gather, an indoor shooting range, as well as a Hero Hall commemorating the troops that sacrificed their lives for freedom. The design was received well in the Buckhead community and is currently underway for capital procurement.
CLIENT
AMERICAN LEGION – POST 140
CONTRACTOR
–
SQUARE FEET
7,250
CONSTRUCTION COST
–
COMPLETION DATE
–




















